Please see PDFs of this project here.
This was designed by Andy Laufenberg, and the units were mostly laid out by Peter Schumacher. Andy developed the building in SketchUp and I recreated it in Revit. Andy asked for extreme attention to detail, so I measured everything carefully in SketchUp as I worked. I also made several updates to the SketchUp model, as needed.
For the illustrative elevations, I rendered them from the SketchUp model, using Enscape. I then did some post-processing in GiMP (an image-editing software similar to Photoshop).
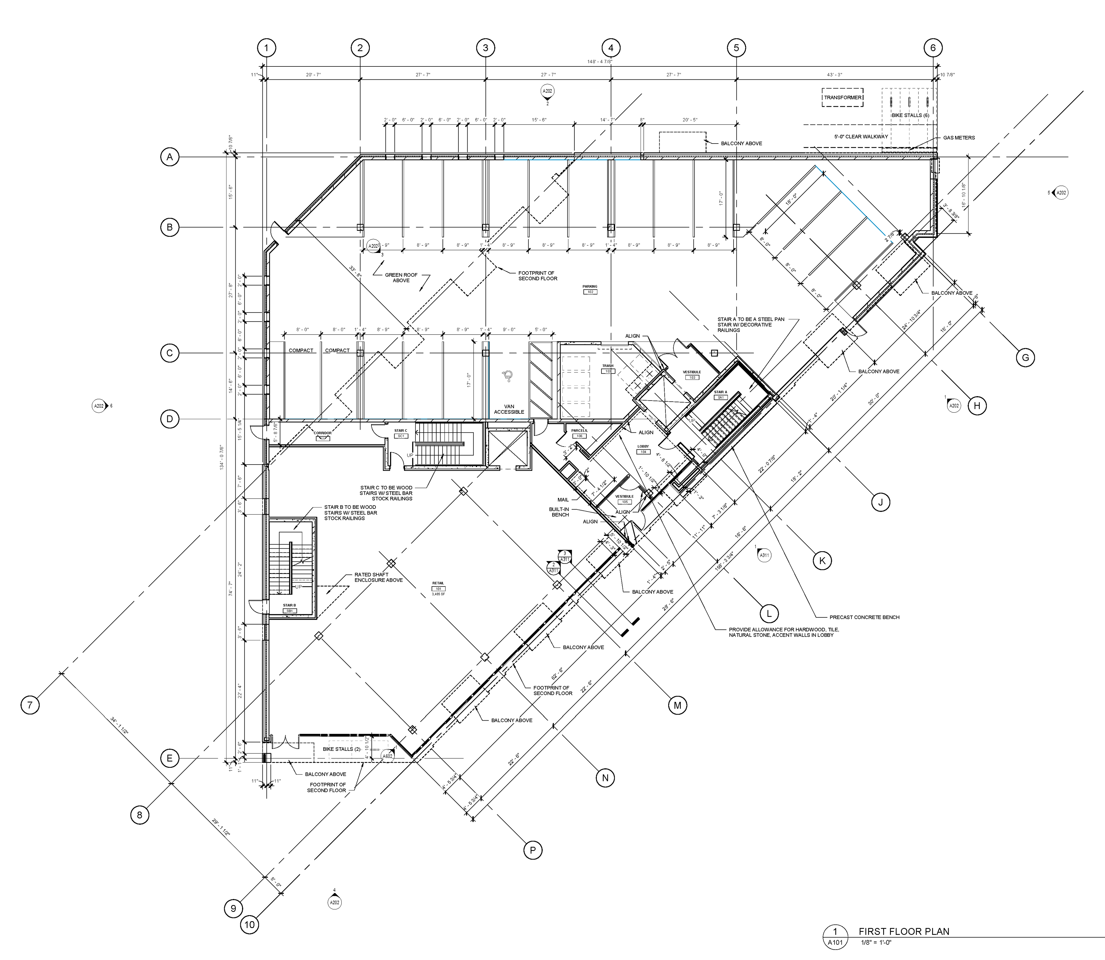
The building has repeated bays, so this was a good time to use Revit model groups. Once I had a model group set up for a given bay, I could use the group to change all instances of that bay at once. This was helpful as the windows evolved. I set up the floor plans and roof plan. I also helped with the enlarged unit plans, and created parametric Revit families to accurately model the Intus windows.
In this case, the neighborhood was concerned about the building’s height and mass. So I created some detailed shadow studies in SketchUp. I didn’t think to copy those as I was leaving, unfortunately.